
青岛滨海学院附属医院占地226亩,总投资20亿元人民币,总建筑面积36.4万平方米,设计住院床位1700张,是一所集医疗、教学、科研于一体,为非营利性大型医疗机构,也是全国首家建设的军民融合医院,该院自建成投入运营以来,在军民医疗卫生保障深度融合发展方面展开积极探索。
(图片来源:百度图库)
据了解,青岛滨海学院附属医院的服务定位与军民深度融合发展紧密相连,其主要功能是向海军官兵和西海岸新区及周边地区居民提供高水平的专科性医疗卫生服务,为部队提供应急医疗服务和战时救护保障。同时,承担着探索地方医院为部队服务实现军队医疗保障地方化、医疗设施军民共享共用、军民医疗卫生保障深度融合发展模式的重任。
根据院方定位以及洗涤业务实际需求,航星在与该院达成合作之后,经过多次实地勘察、测绘,为青岛滨海学院附属医院量身定制了一套集医疗洗涤与酒店布草洗涤双线并行的一体化洗涤解决方案。
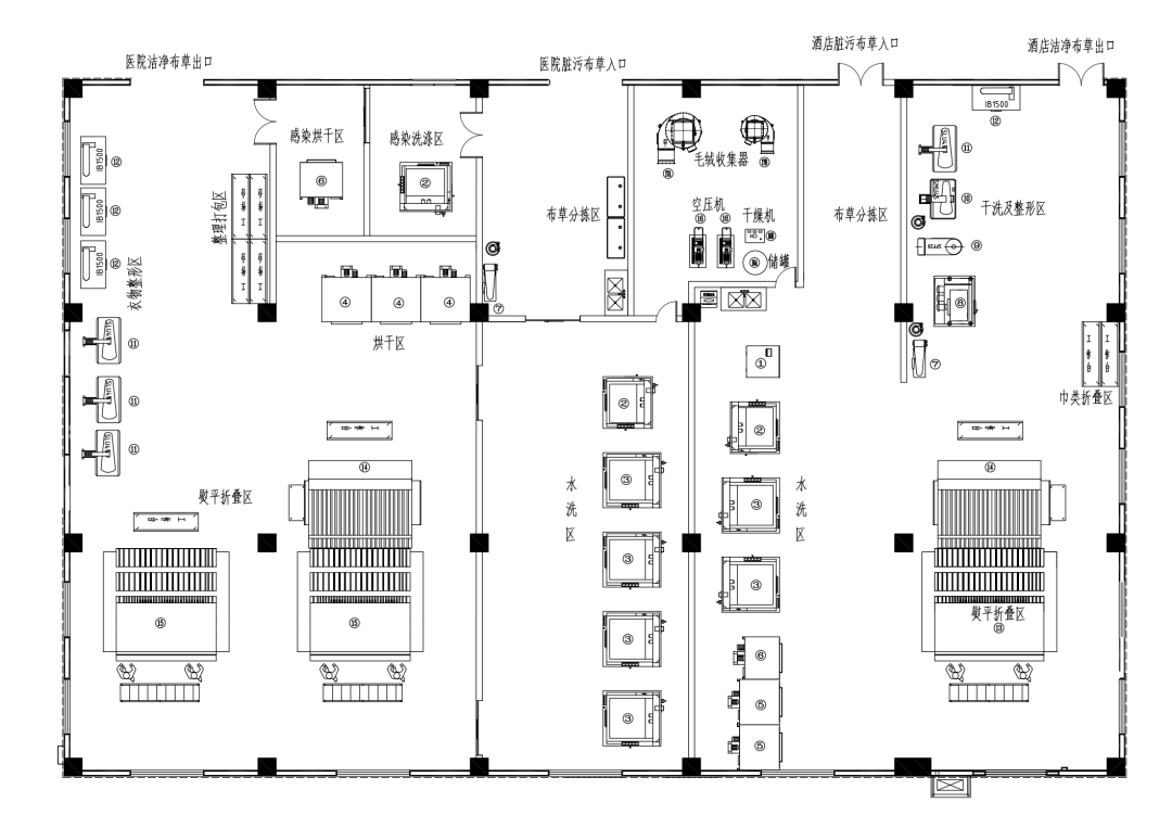
滨海学院附属医院洗衣房规划设计图
洗衣房根据规划方案,医疗洗涤和酒店布草洗涤分别设置为两个独立的操作区域。医疗洗涤区域依据WS/T 508-2016《医院医用织物洗涤消毒技术规范》要求,利用全封闭隔断,将洗涤车间分隔为污衣区与清洁区,工作流程由污到洁,不交叉、不逆行。在污衣区内设置接收分拣、水洗和感染洗涤区,做到专区专洗、专机专洗,清洁区设置烘干、熨烫折叠、打包发放区。
酒店布草洗涤区域,同样也采取了分区规划,将分拣、水洗、干洗整形、熨烫折叠、巾类折叠等不同功能分区按照洗涤流程进行合理规划设计。同时,在医疗洗涤和酒店布草洗涤区域相邻的中间位置,设置空压、干燥、毛绒收集、储罐等辅助设施,利用洗衣房空间,使两条并行的洗涤生产线能够确保设备最大化利用。
截至目前为止,青岛滨海学院附属医院洗衣房项目配套设备已基本完成投放,并在航星工作人员的技术支持和服务保障之下投入稳定运行,为达到院方医疗后勤保障及洗涤设施军民共享公用的预期保驾护航。
本文部分图文资料来源:网络
如有侵权请联系删除